- Renotop
- Veurnestraat 24
- 8660 De Panne
- Tel: +32 (0)58 51 41 14
- GSM: +32 (0)475 65 67 34
- info@renotop.net
- BTW BE0721826290
Ben je op zoek naar een woning in Knokke die je helemaal naar eigen smaak kunt afwerken? Deze verder af te werken woning biedt een unieke mogelijkheid om jouw droomhuis te realiseren in een rustige buurt, op een steenworp afstand van het bekende Charl's en op fietsafstand van het bruisende centrum van Knokke.
De woning verkeert momenteel in casco-staat, wat betekent dat de grote structurele werken reeds zijn uitgevoerd. Je kunt meteen aan de slag met de verdere afwerking, want de volgende werken zijn reeds voltooid:
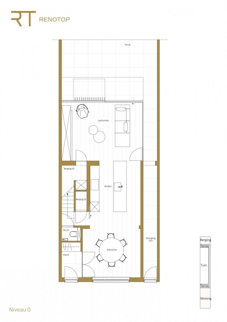
Met een goed doordachte indeling biedt deze woning veel potentieel. De voorziene indeling is als volgt:
De tuin, toegankelijk vanuit de woonkamer, is perfect gericht op het zuiden en biedt volop zon. Dankzij de aparte toegang en de ligging geniet je hier van volledige privacy – ideaal voor rustige zomerdagen of gezellige barbecues met vrienden en familie.
Met de reeds uitgevoerde werken en de doordachte indeling is deze woning klaar om getransformeerd te worden tot een ware parel. Voorzien van dubbel glas en een solide basis, hoef je enkel nog je eigen stijl en afwerking toe te voegen om deze woning om te toveren tot jouw ideale thuis.
Mis deze unieke kans niet om een woning in Knokke-Heist volledig naar eigen wens af te werken! Neem vandaag nog contact met ons op voor meer informatie of een bezichtiging.
